Villa trilocale 150mq
635.000,00 €

0 Wie
0 Wie
Dati annuncio : Verkauf Villa, Manerba del Garda
In una posizione tranquilla e comoda a tutti i servizi, recente VILLA SINGOLA DI ULTIMA GENERAZIONE con ampio giardino di circa 1000 mt., ideale per realizzare una splendida piscina.
La villa è Ecosostenibile, fortemente isolata in Classe A4 ! Completamente elettrica e dotata di impianto fotovoltaico e VMC
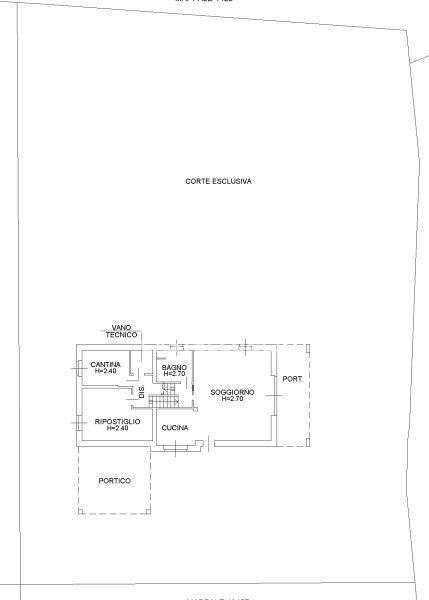
La Villa ha una zona giorno openspace cucina e zona living con portico esclusivo, pochi gradini e ci troviamo nella zona notte con 2 camere matrimoniali e due bagni, di cui uno con vasca.
altri pochi gradini ci troviamo nella tavernetta-cantina, lavanderia con bagno, locale tecnico.
Un portico esclusivo esterno per parcheggiare due auto completa la soluzione
- VorschlagIch biete
- VertragVerkauf
- Preis635.000,00 €
- Zimmer3
- Gesamtquadratmeter150
- Zimmer3
- Bad3
- EnergieklasseA4
- Energieklasse (ipe)342
- Energieklasse (maßeinheit)Kwh/m²a
- KochenCucina a vista
- GartenPrivato
- ImmobilienartVilla
- ProvinzBrescia
- GemeinsamManerba del garda
- Datum26-11-2025 06:33:05
- CodeEa-298ad9











