Appartamento trilocale 73mq
Dati annuncio : Verkauf Appartamento, San Benedetto del Tronto
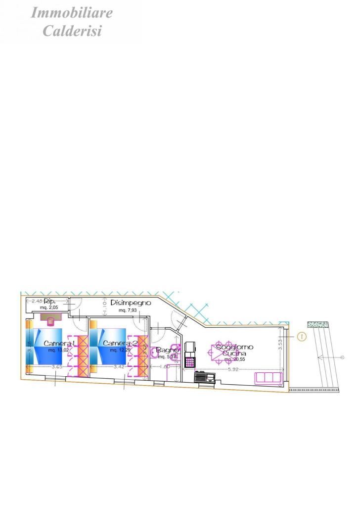
L´agenzia immobiliare Calderisi propone In una delle zone pi ricercate di San Benedetto del Tronto, precisamente nel centro sud, questo moderno appartamento in vendita. La sua posizione strategica lo rende ideale per chi desidera vivere in una zona residenziale, ma allo stesso tempo ben servita e vicina a tutti i principali servizi e al mare. L´appartamento, libero al rogito, si trova al piano rialzato di un edificio di recente costruzione, datato 2017 con ingresso indipendente. L´entrata principale conduce direttamente al luminoso soggiorno, che grazie alla doppia esposizione gode di una splendida luce naturale durante tutto il giorno. La cucina, a vista e dotata di angolo cottura, si affaccia sul soggiorno, creando un ambiente conviviale e moderno. La zona notte composta da due camere da letto e da un bagno, entrambi arredati con gusto e dotati di ogni comfort. Tutti gli ambienti dell´appartamento sono caratterizzati da un impianto di riscaldamento autonomo a metano e da un sistema di pavimento/battiscopa, che garantiscono un´ottima efficienza energetica e un elevato comfort abitativo. Gli infissi in PVC con taglio termico garantiscono un´ottima isolamento acustico e termico, mentre la presenza di un sistema di allarme aumenta la sicurezza dell´immobile. Lo stato di conservazione dell´appartamento ottimo, pari al nuovo. L´arredamento moderno e di design, incluso nella vendita, rende l´immobile subito pronto per essere abitato. In sintesi, questo appartamento di circa 75 mq, la soluzione ideale per chi cerca un´abitazione moderna, funzionale e ben posizionata a San Benedetto del Tronto. Non perdere l´occasione di acquistare il tuo nuovo nido, libero al rogito, nel cuore della citt. Agenzia immobiliare Calderisi. 0735 86939 - SC9399921
- VorschlagIch biete
- VertragVerkauf
- Preis220.000,00 €
- Jahr2017
- Zimmer3
- Anzahl der stockwerke4
- PlanR
- Gesamtquadratmeter73
- Bad1
- EnergieklasseC
- Energieklasse (ipe)115,82 kwh/m2
- ZustandOttimo
- AufzugNo
- WeingutNo
- HeizungAutonomo
- EinrichtungNo
- VerfügbarkeitLibero al rogito
- ServicegebührenAnnuali
- ProvinzAscoli piceno
- GemeinsamSan benedetto del tronto
- Datum30-11-2025 06:14:37
- CodeEa-e9dbab

